Fazantlande 1, Pijnacker

Omschrijving

-- English description see below --

Luxe twee-onder-één-kapwoning met dwarskap in Landrijk 18 Cottage – Fazantlande 1, Pijnacker

Ca. 213 m² woonoppervlak | 281 m² eigen grond | Energielabel A+++ | 4 slaapkamers + luxe werkkamer | 2 badkamers | 13 zonnepanelen | Warmtepomp | Parkeren op eigen terrein | Ruime voor- én achtertuin

Bent u op zoek naar een zeer ruime, energiezuinige en uitzonderlijk hoogwaardig afgewerkte woning op een van de mooiste plekken in Pijnacker?

Dan is deze indrukwekkende twee-onder-één-kapwoning aan de Fazantlande 1 een bezichtiging meer dan waard.

De woning ligt in de geliefde nieuwbouwwijk Ackerswoude – Landrijk 18 Cottage, een stijlvol en groen opgezet deelplan met karakteristieke cottage-architectuur, hoogwaardige materialen en veel wooncomfort. Hier woont u rustig, comfortabel en toch dichtbij alle voorzieningen van Pijnacker.

Indeling en kenmerken
Deze woning valt direct op door de royale leefruimtes, luxe materiaalkeuzes en hoogwaardige afwerking in de gehele woning. Alle verdiepingen zijn voorzien van een Hongaarse punt PVC-vloer met hoge plinten en luxe paneeldeuren.

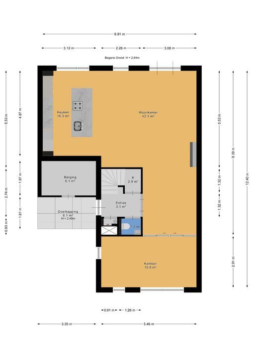
Begane grond
Via de ruime entree met garderobe, meterkast en modern toilet betreedt u de prachtige leefruimte.
De royale woonkamer van circa 50 m² is bijzonder licht door de grote raampartijen. De blikvanger is de stijlvolle wand met laag hangende maatwerkkasten en geïntegreerde haard, waarbij de televisie volledig vrij aan de wand hangt — strak, modern en premium.
Via de openslaande deuren bereikt u de fraai aangelegde achtertuin.
Tussen de woonkamer en de werkkamer bevindt zich een luxe glazen schuifseparatie met stalen schuifdeuren van Gewoon Gers, waarmee u beide ruimtes kunt verbinden of afsluiten zonder licht te verliezen.
Aan de achterzijde van de woning bevindt zich de luxe open woonkeuken met kookeiland, voorzien van hoogwaardige inbouwapparatuur en genoeg ruimte voor een grote eettafel.
De ideale plek voor lange avonden tafelen met familie en vrienden.
De begane grond biedt daarnaast een ruime werk-/studeerkamer en een praktische inpandige berging van ca. 6 m². De entree is deels overdekt.

Eerste verdieping
De eerste verdieping beschikt over drie ruime slaapkamers.
De sfeervolle hoofdslaapkamer heeft een royale inloopkast, ideaal voor extra comfort en bergruimte.
De luxe badkamer is uitgerust met:
- vrijstaand ligbad
- ruime inloopdouche met regendouche
- dubbele wastafel met meubel
- Het tweede toilet bevindt zich op de overloop en is apart van de badkamer.
Vanaf deze verdieping bereikt u tevens een ruime bergvliering, ideaal voor opslag.

Tweede verdieping
De tweede verdieping is verrassend ruim en zeer compleet uitgevoerd.
Hier vindt u:
- een ruime vierde slaapkamer (ca. 25 m²) met eigen inloopkast
- een luxe thuiswerkplek met volop daglicht en werkruimte
- een tweede luxe badkamer ensuite, voorzien van:
- inloopdouche met regendouche
- wastafelmeubel
- derde toilet
- een praktische wasruimte en extra bergruimte

Buitenruimte
De woning beschikt zowel over een ruime voortuin (ca. 25 m²) als een prachtig aangelegde achtertuin (ca. 90 m²) met veel privacy.
De achtertuin is voorzien van meerdere zonneterrassen, zodat u op elk gewenst moment van de dag van de zon kunt genieten. Het onderhoudsvrije kunstgras zorgt voor een altijd strakke en verzorgde uitstraling.
Parkeren kan op eigen terrein en in de wijk is voldoende openbare parkeergelegenheid.

Energiezuinig en toekomstbestendig
Deze woning beschikt over energielabel A+++ en is volledig voorbereid op de toekomst dankzij o.a.:
- lucht/water-warmtepomp
- comfortabele vloerverwarming door de gehele woning
- 13 zonnepanelen
- triple glas
- hoogwaardige isolatie
- warmteterugwinning uit douchewater
- waterontharder
Hier woont u met maximaal comfort en minimale energielasten.

Locatie
De woning ligt in een rustige en kindvriendelijke omgeving met veel groen en alle voorzieningen binnen handbereik:
- Winkelcentrum Ackershof
- basisscholen en kinderopvang
- sportverenigingen en recreatiemogelijkheden
- Delftse Hout op korte fietsafstand
De bereikbaarheid is uitstekend met de RandstadRail richting Den Haag en Rotterdam en snelle aansluiting op de A4, A12 en A13.

Samengevat
- ca. 213 m² woonoppervlak
- 281 m² eigen grond
- Energielabel A+++
- 4 ruime slaapkamers + luxe werkkamer
- 2 luxe badkamers
- Hongaarse punt PVC-vloer
- Luxe open woonkeuken aan de tuinzijde
- Wand met lage kasten en geïntegreerde haard
- Glazen separatie met stalen schuifdeuren
- Inpandige berging ca. 6 m²
- Ruime bergvliering
- 13 zonnepanelen
- Warmtepomp en vloerverwarming
- Grote voor- en achtertuin
- Parkeren op eigen terrein
- Oplevering in overleg
- Notariskeuze voorbehouden aan verkoper (Ellens & Lentze Notariaat te Den Haag)

Wilt u deze uitzonderlijk luxe en royale gezinswoning zelf ervaren?
Neem gerust contact met ons op voor meer informatie of het plannen van een bezichtiging.

-------------------------------------------------------------------------------------------------------------------------

Luxury Semi-Detached Home in Landrijk 18 Cottage – Fazantlande 1, Pijnacker

Approx. 213 m² living space | 281 m² freehold plot | Energy label A+++ | 4 bedrooms + luxury home office | 2 bathrooms | 13 solar panels | Heat pump | Private parking | Spacious front and back garden

Are you looking for a spacious, energy-efficient and exceptionally high-quality finished home in one of the most beautiful locations in Pijnacker?

Then this impressive semi-detached property at Fazantlande 1 is definitely worth a viewing.

The home is located in the popular Ackerswoude – Landrijk 18 Cottage development, a stylish and green residential area featuring characteristic cottage architecture, high-quality materials and excellent living comfort. Here you enjoy peaceful living while remaining close to all amenities in Pijnacker.

Layout and Features
This home immediately stands out due to its generous living spaces, luxury material choices and high-end finishing throughout the entire property. All floors feature a Hungarian-point PVC floor with high skirting boards and luxury panel doors.

Ground Floor
Through the spacious entrance with wardrobe area, meter cupboard and modern toilet you enter the beautiful living space.
The generous living room of approximately 50 m² is exceptionally bright thanks to the large windows.
The eye-catcher is the stylish feature wall with custom low cabinets and an integrated fireplace, with the television mounted cleanly on the wall — sleek, modern and premium.
French doors provide access to the beautifully landscaped rear garden.
Between the living room and the study you will find a luxury glass partition with steel sliding doors by Gewoon Gers, allowing both spaces to be connected or separated without losing natural light.
At the rear of the house is the luxury open-plan kitchen with cooking island, equipped with high-quality built-in appliances and ample space for a large dining table.
The perfect place for long evenings of dining with family and friends.
The ground floor also offers a spacious home office / study and a practical internal storage room of approximately 6 m².
The entrance is partially covered.

First Floor
The first floor features three spacious bedrooms.
The attractive master bedroom includes a large walk-in closet, providing extra comfort and storage space.
The luxury bathroom is equipped with:
- freestanding bathtub
- spacious walk-in shower with rain shower
- double washbasin with vanity unit
The second toilet is located separately on the landing.
From this floor you also have access to a large storage loft, ideal for additional storage.

Second Floor
The second floor is surprisingly spacious and very well equipped.
Here you will find:
- a large fourth bedroom (approx. 25 m²) with its own walk-in closet
- a luxury home office area with plenty of daylight and workspace
- a second luxury ensuite bathroom, equipped with:
- walk-in shower with rain shower
- washbasin vanity
- third toilet
- a practical laundry room and additional storage space

Outdoor Space
The property features both a spacious front garden (approx. 25 m²) and a beautifully landscaped private backyard (approx. 90 m²).
The rear garden includes multiple sun terraces, allowing you to enjoy the sun at any time of the day.
The low-maintenance artificial lawn ensures a neat and well-maintained appearance all year round.
Parking is available on private property, and there is also ample public parking in the surrounding streets.

Energy-Efficient and Future-Proof
This property has an A+++ energy label and is fully prepared for the future thanks to features including:
- air-to-water heat pump
- comfortable underfloor heating throughout the entire house
- 13 solar panels
- triple glazing
- high-quality insulation
- shower heat recovery system
- water softener
This ensures maximum comfort with minimal energy costs.

Location
The property is located in a quiet and child-friendly neighbourhood with plenty of green space and all amenities nearby:
- Ackershof shopping centre
- primary schools and childcare facilities
- sports clubs and recreational facilities
- Delftse Hout nature area within cycling distance
Accessibility is excellent with RandstadRail connections to The Hague and Rotterdam and quick access to the A4, A12 and A13 motorways.

Summary
- approx. 213 m² living space
- 281 m² freehold plot
- Energy label A+++
- 4 spacious bedrooms + luxury home office
- 2 luxury bathrooms
- Hungarian-point PVC flooring
- Luxury open-plan kitchen facing the garden
- Feature wall with custom cabinets and integrated fireplace
- Glass partition with steel sliding doors
- Internal storage room approx. 6 m²
- Large storage loft
- 13 solar panels
- Heat pump and underfloor heating
- Large front and rear garden
- Private parking
- Transfer in consultation
- Choice of notary reserved for the seller (Ellens & Lentze Notariaat, The Hague)

Would you like to experience this exceptionally luxurious and spacious family home for yourself?
Please feel free to contact us for more information or to schedule a viewing.

Kenmerken

Overdracht

Status
Beschikbaar
Prijs
€ 1.085.000 k.k.
Oplevering
In overleg

Bouw

Soort woonhuis
Herenhuis, 2-onder-1-kapwoning
Soort bouw
Bestaande bouw
Bouwjaar
2022
Onderhoud binnen
Uitstekend
Onderhoud buiten
Uitstekend

Oppervlakten en inhoud

Woonoppervlakte
213m²
Perceeloppervlakte
281m²
Oppervlakte woonkamer
53m²
Overig oppervlakte
10m²
Inhoud
808m³

Indeling

Aantal kamers
6
Aantal slaapkamers
5
Aantal badkamers
2
Aantal verdiepingen
3
Voorzieningen
Mechanische ventilatie, Dakraam, Glasvezel kabel, Zonnepanelen

Energie

Energielabel
A+++
Isolatie
Dakisolatie, Muurisolatie, Vloerisolatie, Driedubbel glas
Warm water
Elektrische boiler eigendom
Verwarming
Warmtepomp

Buitenruimte

Ligging
Aan rustige weg, In woonwijk, Vrij uitzicht, Open ligging
Tuin
Achtertuin, Voortuin, Zijtuin
Achtertuin
Noordoost, 91m², 860×1060cm
Schuur
Inpandig
Faciliteiten schuur
Voorzien van elektra

Garage

Soort garage
Parkeerplaats

Plattegronden

Locatie

[ { "address": "Fazantlande 1", "zipCode": "2642 ZT", "city": "Pijnacker", "lat": 52.018262, "lng": 4.441751, "heading": 0, "pitch": 0 } ]
[{"featureType":"water","elementType":"geometry","stylers":[{"color":"#e9e9e9"},{"lightness":17}]},{"featureType":"landscape","elementType":"geometry","stylers":[{"color":"#f5f5f5"},{"lightness":20}]},{"featureType":"road.highway","elementType":"geometry.fill","stylers":[{"color":"#ffffff"},{"lightness":17}]},{"featureType":"road.highway","elementType":"geometry.stroke","stylers":[{"color":"#ffffff"},{"lightness":29},{"weight":0.2}]},{"featureType":"road.arterial","elementType":"geometry","stylers":[{"color":"#ffffff"},{"lightness":18}]},{"featureType":"road.local","elementType":"geometry","stylers":[{"color":"#ffffff"},{"lightness":16}]},{"featureType":"poi","elementType":"geometry","stylers":[{"color":"#f5f5f5"},{"lightness":21}]},{"featureType":"poi.park","elementType":"geometry","stylers":[{"color":"#dedede"},{"lightness":21}]},{"elementType":"labels.text.stroke","stylers":[{"visibility":"on"},{"color":"#ffffff"},{"lightness":16}]},{"elementType":"labels.text.fill","stylers":[{"saturation":36},{"color":"#333333"},{"lightness":40}]},{"elementType":"labels.icon","stylers":[{"visibility":"off"}]},{"featureType":"transit","elementType":"geometry","stylers":[{"color":"#f2f2f2"},{"lightness":19}]},{"featureType":"administrative","elementType":"geometry.fill","stylers":[{"color":"#fefefe"},{"lightness":20}]},{"featureType":"administrative","elementType":"geometry.stroke","stylers":[{"color":"#fefefe"},{"lightness":17},{"weight":1.2}]}]

Contact opnemen
Interesse in deze woning? Vul onderstaande formulier in of bel 070 - 221 07 00

Uw bericht is naar ons verzonden. Wij nemen zo snel mogelijk contact met u op.

Sorry, we kunnen helaas niet met zekerheid vaststellen of je een mens of een geautomatiseerde bot/spammer bent. Hierdoor kunnen we het formulier dat je hebt ingevuld niet verzenden. Probeer het opnieuw of neem direct contact op met de makelaar via e-mail.

Er is iets mis gegaan met het versturen van het formulier.
Controleer of u alle velden (goed) heeft ingevoerd en probeer het nog een keer.

recaptcha
reCAPTCHA
PrivacyTerms