Zwetstraat 17, Den Haag

Omschrijving

-- English description see below --

Instapklare benedenwoning met zonnige tuin en terras – Zwetstraat 17, Den Haag

Woonoppervlak ca. 96 m² | 3 slaapkamers | Energielabel C | Eigen grond | Tuin ca. 12.25 x 7.70 m (ZO)


Indeling en kenmerken
Deze recent volledig gerenoveerde benedenwoning biedt een uitstekende combinatie van ruimte, comfort en een heerlijke buitenruimte.

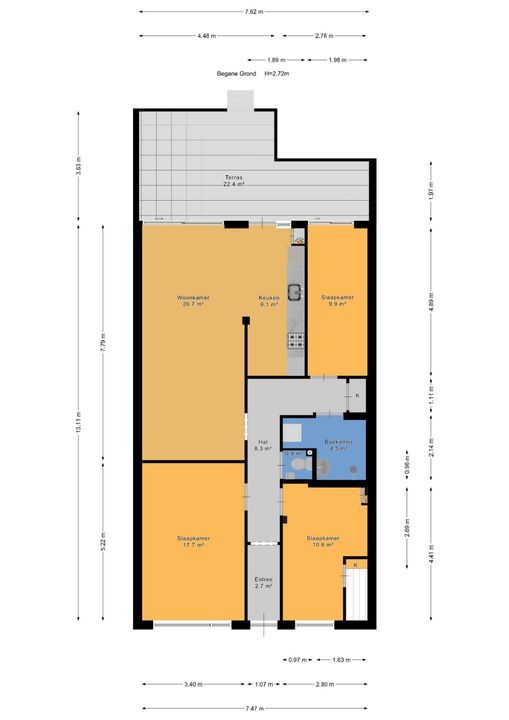
Via de entree kom je in de hal die toegang biedt tot alle vertrekken. Aan de voorzijde bevinden zich twee slaapkamers van ca. 17.7 m² en 10.6 m².

De lichte woonkamer van ca. 26.7 m² ligt aan de achterzijde en staat middels een schuifpui in directe verbinding met de tuin. Hier geniet je van veel daglicht en een prettige leefruimte.

De luxe open keuken (ca. 9.1 m²) is modern uitgevoerd en voorzien van een marmeren aanrechtblad, koelkast, vriezer, vaatwasser, combi-oven en een 5-pits gaskookplaat met geïntegreerde afzuiging – een bijzonder en strak detail.

Aan de achterzijde bevindt zich een derde slaapkamer van ca. 9.9 m², ideaal als werk-, kinder- of logeerkamer.

De moderne badkamer (ca. 4.5 m²) beschikt over een inloopdouche en wastafel. Daarnaast is er een separaat toilet aanwezig.

De gehele woning is strak afgewerkt met gestuukte wanden en plafonds en voorzien van een moderne, drempelloos gelegde V-groef laminaatvloer.


Buitenruimte
Een absoluut pluspunt van deze woning is de riante achtertuin op het zuidoosten van ca. 12.25 x 7.70 meter. Dankzij de gunstige ligging geniet je hier vrijwel de gehele dag van de zon, waardoor het een heerlijke plek is om te ontspannen.
De tuin is verzorgd aangelegd en beschikt over een ruim zonneterras (ca. 22.4 m²), ideaal voor een lounge- of eethoek. Aan de achterzijde is er vrij uitzicht, wat zorgt voor een gevoel van ruimte en privacy. Tevens is er een vrijstaande stenen berging van ca. 7.2 m² aanwezig, perfect voor het stallen van fietsen en het opbergen van tuinspullen.
Een fijne en rustige buitenruimte waar je optimaal kunt genieten van het buitenleven.


Locatie
Gelegen in de Rivierenbuurt (Zuid), een centraal en volop in ontwikkeling zijnde woonomgeving in Den Haag. De wijk ligt strategisch tussen het centrum, station Hollands Spoor en de Binckhorst en kenmerkt zich door een mix van karakteristieke bebouwing en vernieuwende ontwikkelingen.

De woning bevindt zich op korte afstand van:
- Station Den Haag Hollands Spoor
- Diverse tram- en busverbindingen
- Het centrum van Den Haag (op fietsafstand)
- Winkels, supermarkten en horecagelegenheden
- Groene plekken zoals het Huygenspark
- Daarnaast zijn de uitvalswegen richting A4, A12 en A13 eenvoudig bereikbaar.

De combinatie van centrale ligging, uitstekende bereikbaarheid en stedelijke dynamiek maakt dit een zeer aantrekkelijke woonomgeving.


Energie-efficiëntie
De woning beschikt over een gunstig energielabel C, wat bijdraagt aan comfortabel en energiezuinig wonen. Daarnaast is de woning volledig voorzien van dubbele beglazing, wat zorgt voor goede isolatie en een aangenaam binnenklimaat. De verwarming en warmwatervoorziening worden verzorgd door een HR-combiketel uit 2014, die efficiënt en betrouwbaar functioneert.


Bijzonderheden
- Woonoppervlak ca. 96 m²
- Inhoud ca. 355 m³
- Gelegen op eigen grond
- Benedenwoning met riante achtertuin op het zuidoosten
- Tuin ca. 12.25 x 7.70 m met zonneterras en vrij uitzicht
- 3 slaapkamers
- Woonkamer ca. 27 m² met schuifpui naar de tuin
- Luxe keuken met hoogwaardige inbouwapparatuur
- Moderne badkamer
- Recent volledig gerenoveerd
- Volledig gestuukt en voorzien van moderne vloerafwerking
- Externe berging ca. 7.2 m²
- Actieve VvE met bijdrage € 175,- per maand
- Meerjarenonderhoudsplan (MJOP) aanwezig
- Centrale ligging nabij OV en uitvalswegen
- Ouderdoms-, materialen- en niet-bewoondclausule van toepassing
- Oplevering per direct mogelijk


Instapklaar wonen met een zonnige tuin op een toplocatie. Plan snel een bezichtiging en laat je verrassen!

-------------------------------------------------------------------------------------------------------------------------

Turn-key ground floor apartment with sunny garden and terrace – Zwetstraat 17, The Hague

Living space approx. 96 m² | 3 bedrooms | Energy label C | Own ground | Garden approx. 12.25 x 7.70 m (SE)


Layout and features
This recently fully renovated ground floor apartment offers an excellent combination of space, comfort and a wonderful outdoor area.

Upon entering, you arrive in the hallway which provides access to all rooms. At the front of the property, there are two bedrooms of approx. 17.7 m² and 10.6 m².

The bright living room of approx. 26.7 m² is located at the rear and is directly connected to the garden through sliding doors. This creates a pleasant living space with plenty of natural light.

The luxurious open kitchen (approx. 9.1 m²) is modern in design and equipped with a marble countertop, refrigerator, freezer, dishwasher, combi-oven and a 5-burner gas hob with integrated extraction – a unique and sleek feature.

At the rear, you will find a third bedroom of approx. 9.9 m², ideal as a home office, children's room or guest room.

The modern bathroom (approx. 4.5 m²) features a walk-in shower and washbasin. There is also a separate toilet.

The entire apartment is finished to a high standard with plastered walls and ceilings and a modern, seamless V-groove laminate floor throughout.


Outdoor space
A true highlight of this property is the spacious southeast-facing garden of approx. 12.25 x 7.70 meters. Thanks to its favorable orientation, you can enjoy the sun for most of the day, making it a perfect place to relax.

The garden is well-maintained and features a generous sun terrace (approx. 22.4 m²), ideal for a lounge or dining area. At the rear, there is an open view, providing a pleasant sense of space and privacy. Additionally, there is a detached stone storage room of approx. 7.2 m², perfect for bicycles and garden equipment.

A peaceful and comfortable outdoor space where you can fully enjoy outdoor living.


Location
Situated in the Rivierenbuurt (South), a centrally located and rapidly developing residential area in The Hague. The neighborhood is strategically positioned between the city centre, Hollands Spoor station and the Binckhorst area, and is characterized by a mix of traditional architecture and modern developments.

The property is located within close proximity to:
- The Hague Hollands Spoor station
- Various tram and bus connections
- The city centre of The Hague (within cycling distance)
- Shops, supermarkets and restaurants
- Green areas such as Huygenspark
- Major roads including the A4, A12 and A13

The combination of central location, excellent accessibility and urban vibrancy makes this a highly attractive place to live.


Energy efficiency
The property has a favourable energy label C, contributing to comfortable and energy-efficient living. In addition, the apartment is fully fitted with double glazing, ensuring good insulation and a pleasant indoor climate. Heating and hot water are provided by an HR combi boiler (2014), which operates efficiently and reliably.


Key features
- Living area approx. 96 m²
- Volume approx. 355 m³
- Freehold property (no leasehold)
- Ground floor apartment with spacious southeast-facing garden
- Garden approx. 12.25 x 7.70 m with sun terrace and open view
- 3 bedrooms
- Living room approx. 27 m² with sliding doors to the garden
- Luxury kitchen with high-end built-in appliances
- Modern bathroom
- Recently fully renovated
- Fully plastered and fitted with modern flooring
- External storage approx. 7.2 m²
- Active homeowners’ association (VvE), contribution €175 per month
- Long-term maintenance plan (MJOP) available
- Centrally located near public transport and main roads
- Age, materials and non-occupancy clauses apply
- Available for immediate transfer


Turn-key living with a sunny garden in a prime location. Schedule a viewing soon and be pleasantly surprised!

Kenmerken

Overdracht

Status
Beschikbaar
Prijs
€ 399.000 k.k.
Bijdrage VVE
€ 175
Oplevering
Per direct

Bouw

Soort appartement
Benedenwoning, Appartement
Woonlaag
1
Soort bouw
Bestaande bouw
Bouwjaar
1927
Onderhoud binnen
Uitstekend
Onderhoud buiten
Goed

Oppervlakten en inhoud

Woonoppervlakte
96m²
Oppervlakte woonkamer
26m²
Inhoud
355m³

Indeling

Aantal kamers
4
Aantal slaapkamers
3
Aantal badkamers
1
Aantal verdiepingen
1
Voorzieningen
TV-Kabel, Schuifpui, Natuurlijke ventilatie

Energie

Energielabel
C
Isolatie
Dubbel glas
Warm water
C.V.-ketel
Verwarming
C.V.-ketel
Ketel
Intergas Kompakt HRE (2014, Combi-ketel, Eigendom)

Buitenruimte

Ligging
Aan rustige weg, In centrum, Vrij uitzicht
Tuin
Achtertuin
Achtertuin
Zuidoost, 94m², 770×1225cm
Schuur
Vrijstaand steen

Garage

Plattegronden

Locatie

[ { "address": "Zwetstraat 17", "zipCode": "2515 VD", "city": "Den Haag", "lat": 52.0726792, "lng": 4.3271221, "heading": 0, "pitch": 0 } ]
[{"featureType":"water","elementType":"geometry","stylers":[{"color":"#e9e9e9"},{"lightness":17}]},{"featureType":"landscape","elementType":"geometry","stylers":[{"color":"#f5f5f5"},{"lightness":20}]},{"featureType":"road.highway","elementType":"geometry.fill","stylers":[{"color":"#ffffff"},{"lightness":17}]},{"featureType":"road.highway","elementType":"geometry.stroke","stylers":[{"color":"#ffffff"},{"lightness":29},{"weight":0.2}]},{"featureType":"road.arterial","elementType":"geometry","stylers":[{"color":"#ffffff"},{"lightness":18}]},{"featureType":"road.local","elementType":"geometry","stylers":[{"color":"#ffffff"},{"lightness":16}]},{"featureType":"poi","elementType":"geometry","stylers":[{"color":"#f5f5f5"},{"lightness":21}]},{"featureType":"poi.park","elementType":"geometry","stylers":[{"color":"#dedede"},{"lightness":21}]},{"elementType":"labels.text.stroke","stylers":[{"visibility":"on"},{"color":"#ffffff"},{"lightness":16}]},{"elementType":"labels.text.fill","stylers":[{"saturation":36},{"color":"#333333"},{"lightness":40}]},{"elementType":"labels.icon","stylers":[{"visibility":"off"}]},{"featureType":"transit","elementType":"geometry","stylers":[{"color":"#f2f2f2"},{"lightness":19}]},{"featureType":"administrative","elementType":"geometry.fill","stylers":[{"color":"#fefefe"},{"lightness":20}]},{"featureType":"administrative","elementType":"geometry.stroke","stylers":[{"color":"#fefefe"},{"lightness":17},{"weight":1.2}]}]

Contact opnemen
Interesse in deze woning? Vul onderstaande formulier in of bel 070 - 221 07 00

Uw bericht is naar ons verzonden. Wij nemen zo snel mogelijk contact met u op.

Sorry, we kunnen helaas niet met zekerheid vaststellen of je een mens of een geautomatiseerde bot/spammer bent. Hierdoor kunnen we het formulier dat je hebt ingevuld niet verzenden. Probeer het opnieuw of neem direct contact op met de makelaar via e-mail.

Er is iets mis gegaan met het versturen van het formulier.
Controleer of u alle velden (goed) heeft ingevoerd en probeer het nog een keer.

recaptcha
reCAPTCHA
PrivacyTerms